Ecser üzemcsarnok

Ecser üzemcsarnok

tervezés ideje:2020-2024
helyszín:Ecser, belterület
tervezési feladat:Üzem és gyártócsarnok
hasznos alapterület:8324 m2
felelős tervező:Tóth Gábor
munkatársak:Béres Károly, Bicsak Krisztián
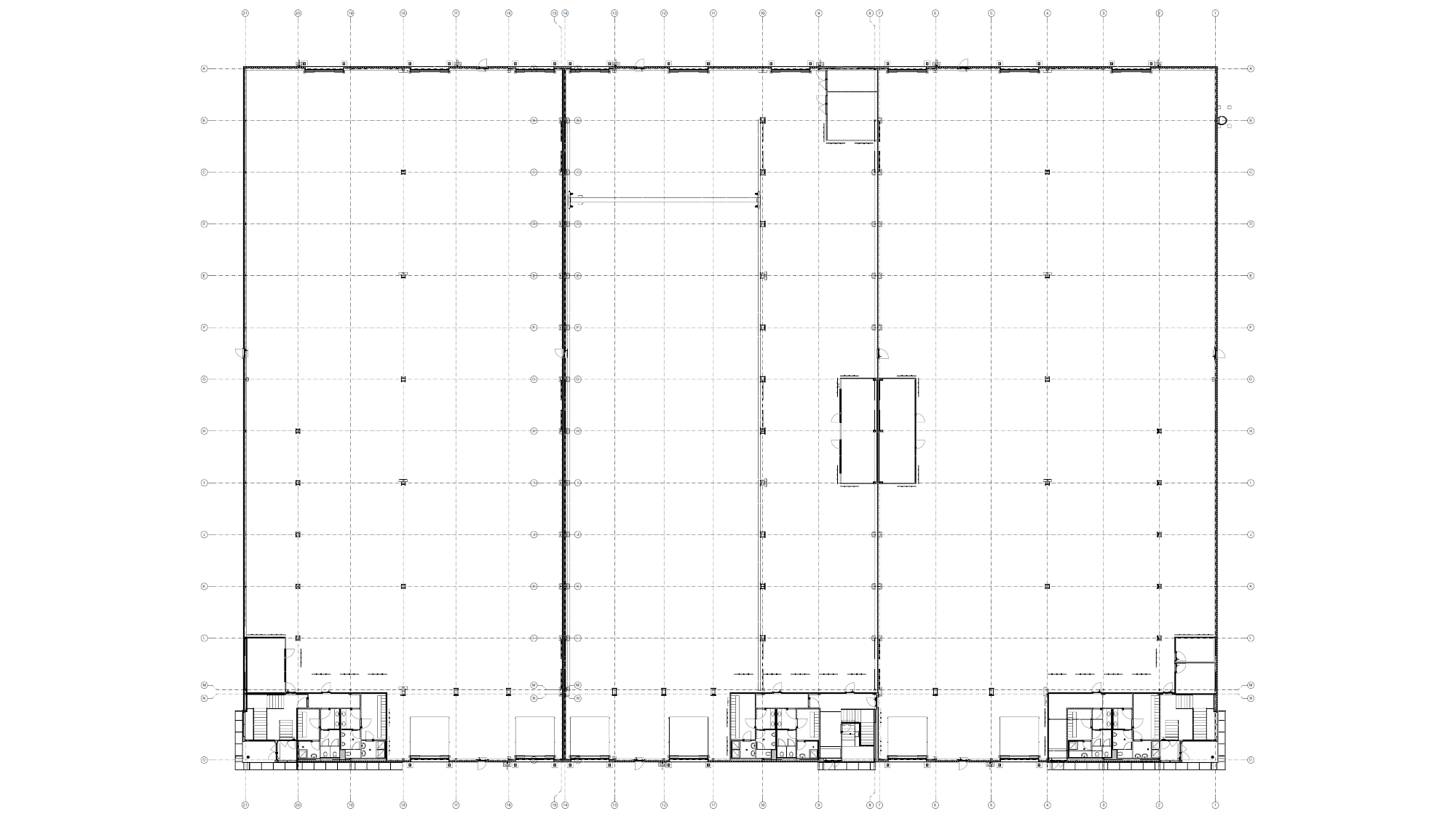
Közös csarnoképületben egymástól függetlenül működő, de közös menedzsment alá tartozó gyártóüzemek elhelyezésére készítettünk terveket. A nyílászáró-gyártás, az épületlakatos- és a betonacél-hajlító tevékenységeket olyan térszervezéssel kellett kiszolgálni, hogy eltérő jellegű áruforgalmukkal ne zavarják egymást, ugyanakkor rövid, áttekinthető közlekedési útvonalakkal legyenek elérhetők az üzemegységek.
Az épület három dilatációs egységre osztott, 2–2 hajós, acélszerkezetű csarnokrészből áll. Az irodák és kiszolgáló helyiségek elhelyezését a magasbordás trapézlemez bennmaradó zsaluzatra öntött hibrid vasbeton födémmel megosztott kétszintes traktusokban alakítottuk ki.
2005 Loc 01 260112 1024x516 2005 Loc 02 260112 1024x766
TGA Tervek Kft.
2100 Gödöllő, Kossuth Lajos utca 25.
1117 Budapest, Fehérvári út 44.
+36 20 807 0556
tooth.g@tgatervek.com
Scroll to Top