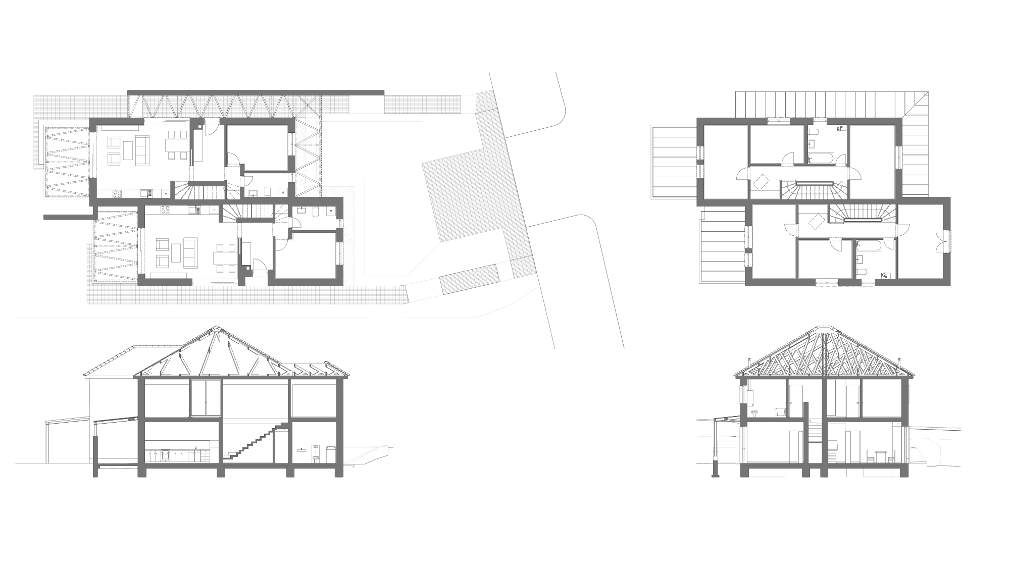
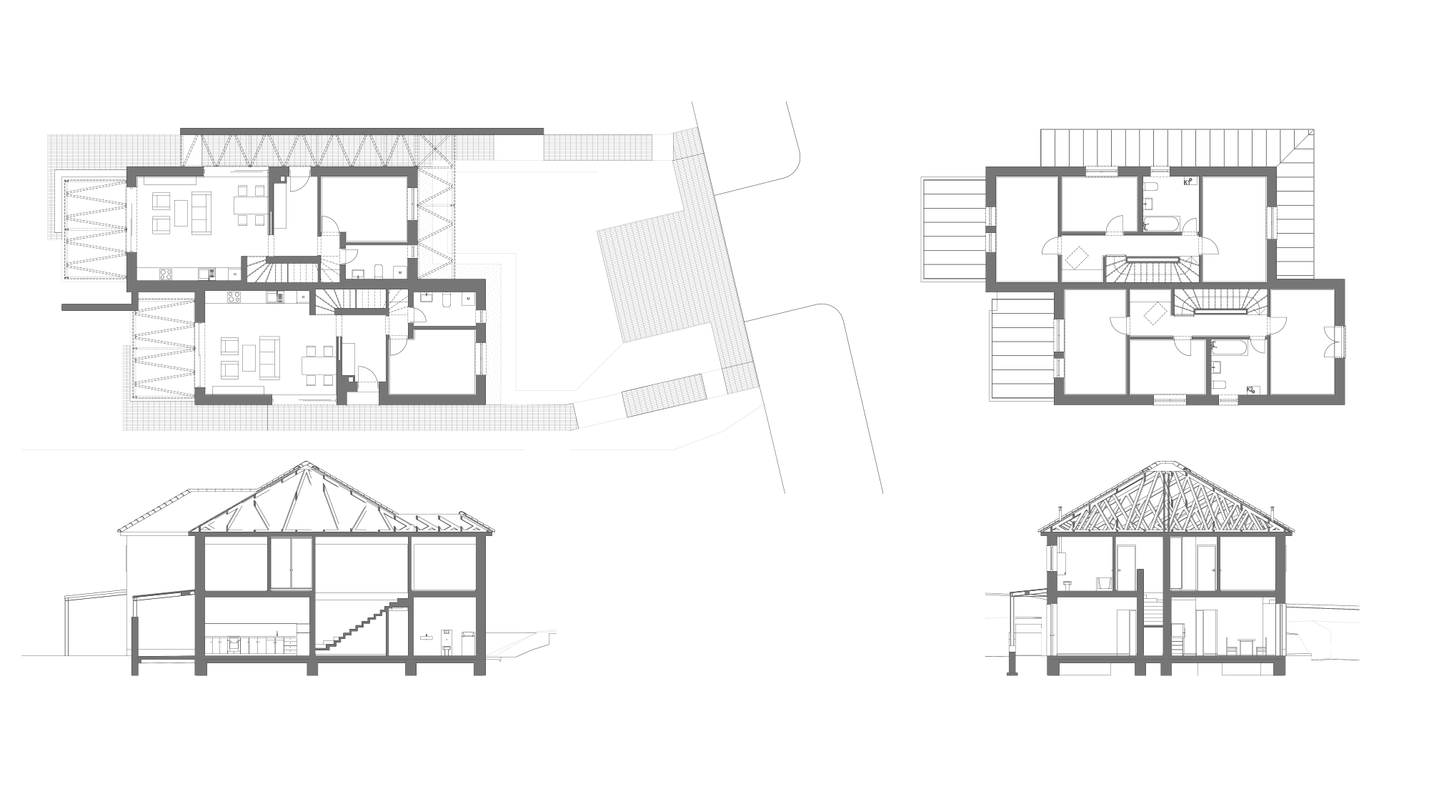
2 lakásos társasház
| tervezés ideje: | 2021-2022 |
| helyszín: | Gödöllő, Márki Sándor utca |
| tervezési feladat: | Oldalhatáron álló 2 lakásos társasház |
| hasznos alapterület: | 179 m2 |
| felelős tervező: | Tóth Gábor |
| munkatársak: | Béres Károly, Bicsak Krisztián |
A kertvárosi környezetbe illeszkedő házat hagyományos, egyszerű, praktikus megoldásokra törekedő építészeti formanyelvvel terveztük. Megrendelői elvárás volt a lakások egymástól független megközelítése, valamint az egyes lakásokhoz tartozó, jól elkülönülő külső használati terek kialakítása.
TGA Tervek Kft.
2100 Gödöllő, Kossuth Lajos utca 25.
1117 Budapest, Fehérvári út 44.
2100 Gödöllő, Kossuth Lajos utca 25.
1117 Budapest, Fehérvári út 44.
+36 20 807 0556
tooth.g@tgatervek.com
tooth.g@tgatervek.com
