2 lakásos társasház

2 lakásos társasház

tervezés ideje:2024
helyszín:Máriakálnok, Aranyossziget Lakópark
tervezési feladat:2 lakásos társasház
hasznos alapterület:321 m2
felelős tervező:Tóth Gábor
munkatársak:Béres Károly
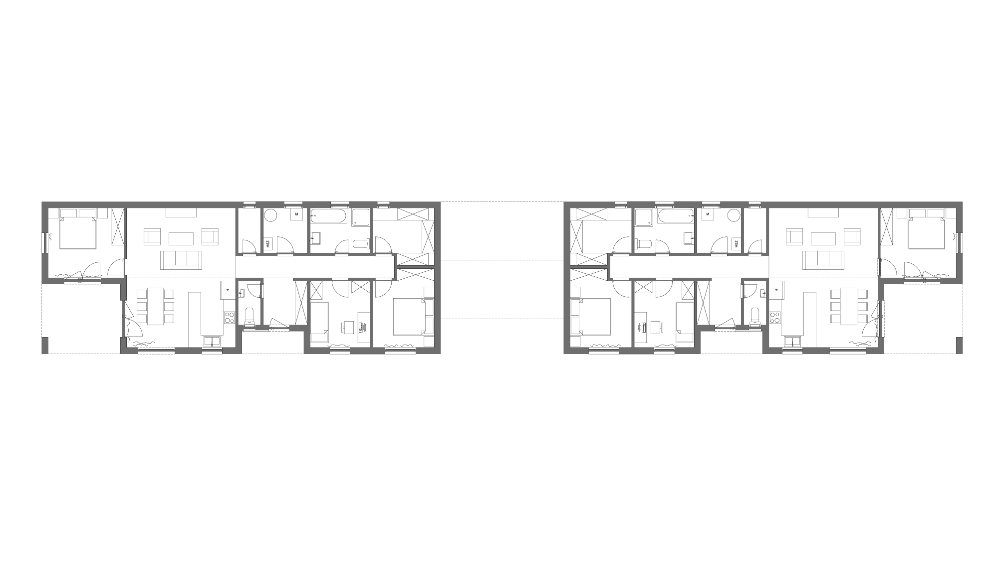
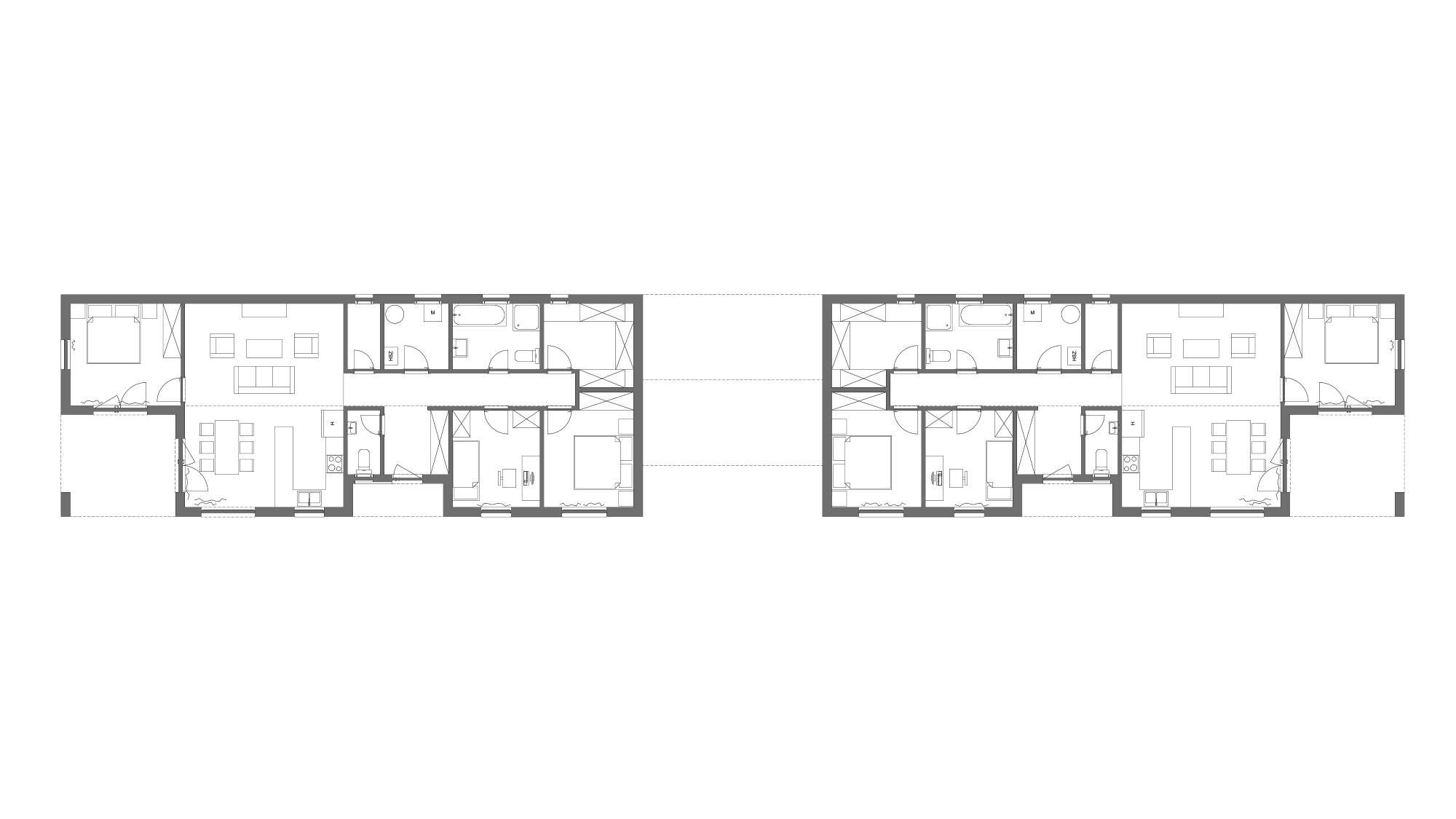
Egyszerű, funkcionális elrendezésű kétlakásos társasház tervezésére kaptunk megbízást. Fontos megrendelői szempont volt az épület minél nagyobb arányú üzemi előregyártása, ezzel csökkentve a helyszíni munkavégzés mennyiségét és időigényét.
A keskeny telekszélességhez igazodva a lakásokat egymás mögötti elrendezésben terveztük. A fedett gépkocsitárolókat a két lakórész között helyeztük el, ezzel a semleges funkcióval hatékonyan elválasztva a lakások kerthasználati területét.
2503 Loc 01 260112 1024x518 2503 Loc 02 260112 1024x752
TGA Tervek Kft.
2100 Gödöllő, Kossuth Lajos utca 25.
1117 Budapest, Fehérvári út 44.
+36 20 807 0556
tooth.g@tgatervek.com
Scroll to Top