2 lakásos társasházak
| tervezés ideje: | 2022-2023 |
| helyszín: | Mogyoród, Napraforgó utca |
| tervezési feladat: | 2 lakásos társasházak |
| hasznos alapterület: | 201-201-199 m2 |
| felelős tervező: | Tóth Gábor |
| munkatársak: | Béres Károly, Bicsak Krisztián |
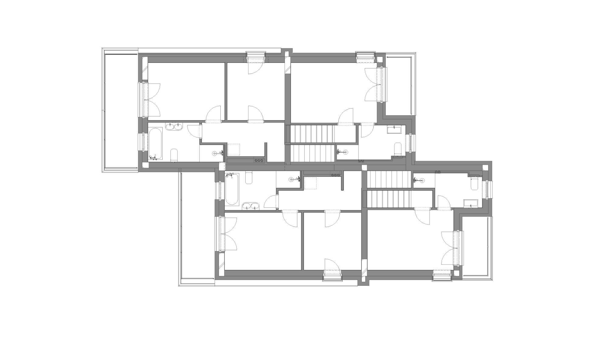
Mogyoród délkeleti részén, több egymással szomszédos telekre terveztünk kétlakásos házakat. A beépítés módja garantálja a lakások önálló használhatóságát, és biztosítja az egyes lakásokhoz tartozó kertrészek intimitását.
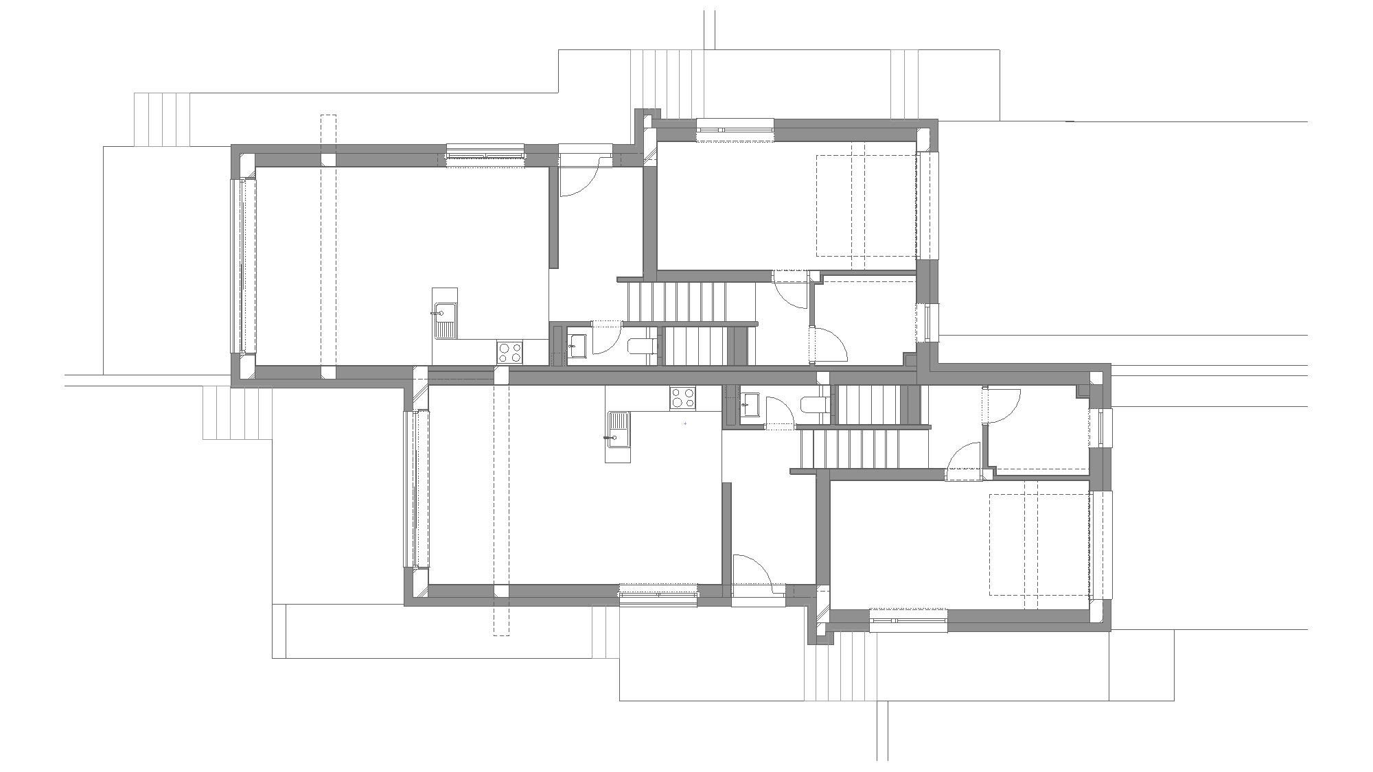
A déli irányban lejtős telken az emeletes, lapostetős épületeket a terepviszonyokhoz alkalmazkodva szinteltolással telepítettük. A déli irányban ereszkedő lépcsőzetes elrendezés mozgalmas tömegformálást tett lehetővé és biztosította a déli tájolású teraszok és a kapcsolódó helyiségek kedvező benapozását.
A déli irányban lejtős telken az emeletes, lapostetős épületeket a terepviszonyokhoz alkalmazkodva szinteltolással telepítettük. A déli irányban ereszkedő lépcsőzetes elrendezés mozgalmas tömegformálást tett lehetővé és biztosította a déli tájolású teraszok és a kapcsolódó helyiségek kedvező benapozását.
TGA Tervek Kft.
2100 Gödöllő, Kossuth Lajos utca 25.
1117 Budapest, Fehérvári út 44.
2100 Gödöllő, Kossuth Lajos utca 25.
1117 Budapest, Fehérvári út 44.
+36 20 807 0556
tooth.g@tgatervek.com
tooth.g@tgatervek.com
