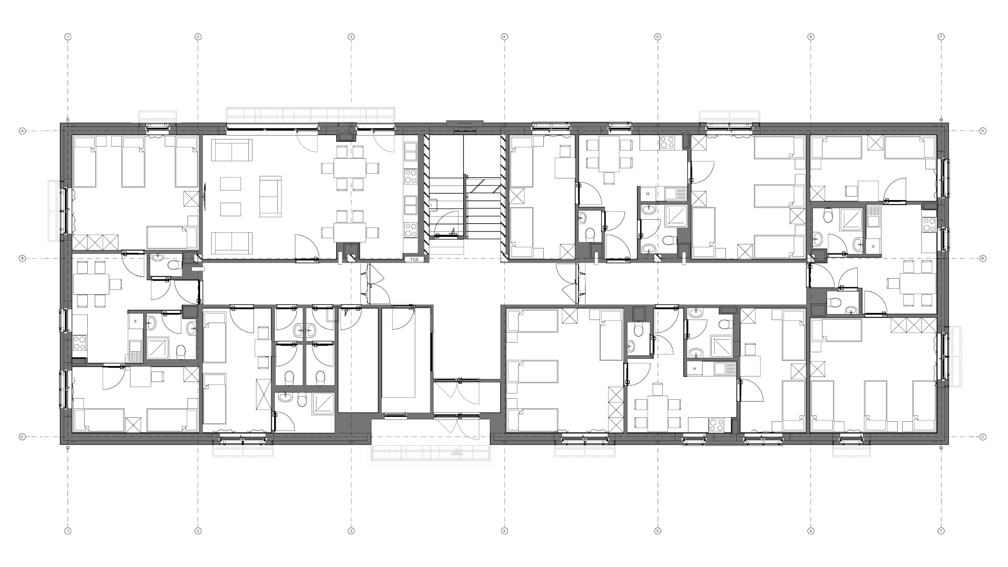
Naturtex munkásszálló
| tervezés ideje: | 2021-2022 |
| helyszín: | Szeged, Kereskedő köz |
| tervezési feladat: | Könnyűipari üzemcsarnok munkásszállója |
| hasznos alapterület: | 1314 m2 |
| felelős tervező: | Tóth Gábor |
| munkatársak: | Béres Károly, Bicsak Krisztián |
Az ipari területen működő könnyűipari üzem dolgozói részére épülő szálláshely terveit készítettük el. A cél egy egyszerűen üzemeltethető, ugyanakkor komfortos elhelyezést biztosító épület létrehozása volt, amely kialakításával és felszereltségével hosszabb távú tartózkodásra is megfelelő környezetet biztosít.
TGA Tervek Kft.
2100 Gödöllő, Kossuth Lajos utca 25.
1117 Budapest, Fehérvári út 44.
2100 Gödöllő, Kossuth Lajos utca 25.
1117 Budapest, Fehérvári út 44.
+36 20 807 0556
tooth.g@tgatervek.com
tooth.g@tgatervek.com
