Balatonlelle hotel felújítás
| tervezés ideje: | 2017-2020 |
| helyszín: | Balatonlelle, Honvéd utca |
| tervezési feladat: | Egykori Postás üdülő felújítása |
| hasznos alapterület: | 10 790 m2 |
| felelős tervező: | Tóth Gábor |
| munkatársak: | Béres Károly, Bicsak Krisztián, Enyedi Gellért |
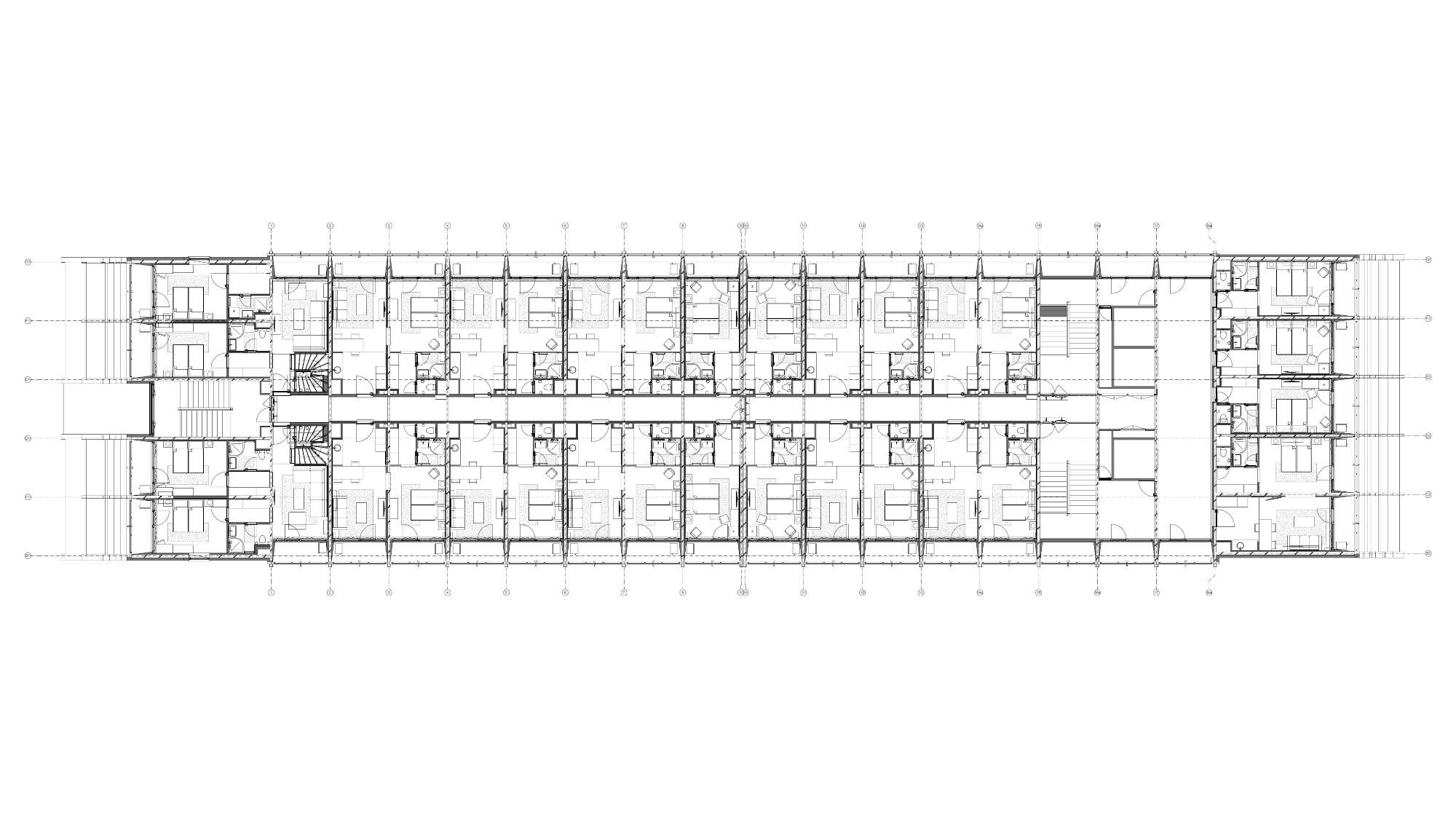
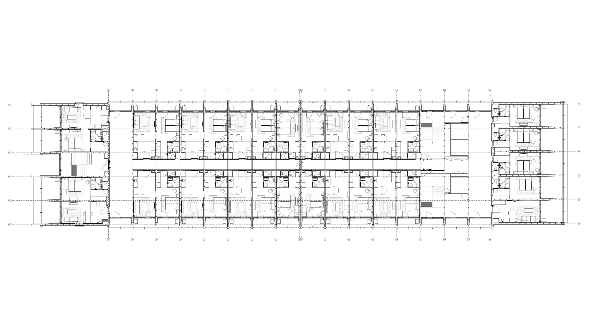
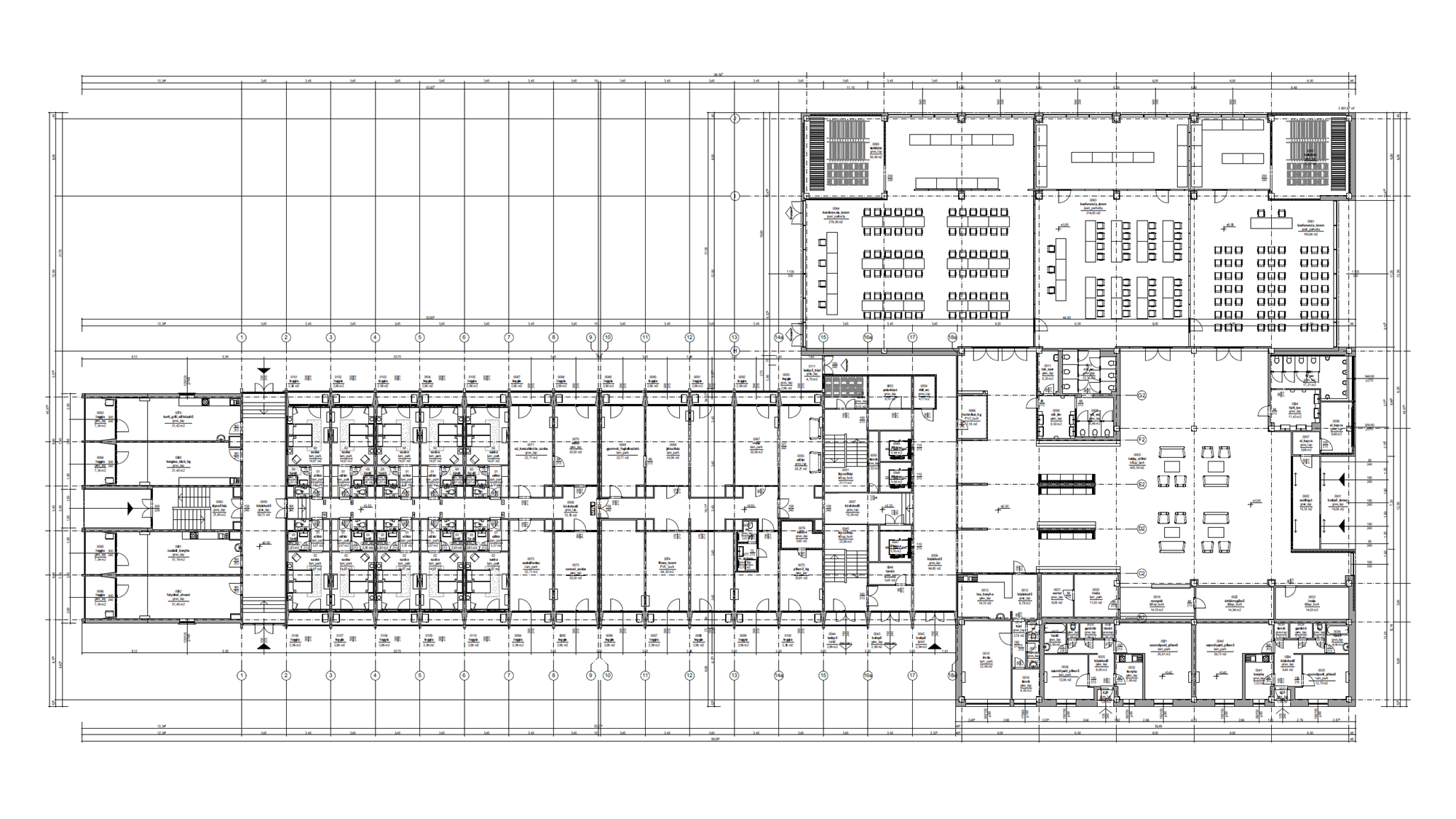
A 80-as évek végén épült egykori SZOT Postás üdülő korszerűsítési terveit készítettük el. Az épületet folyamatosan szállóként használták, és sokan kedvelték a szocializmus időszakát idéző nosztalgikus hangulata miatt.
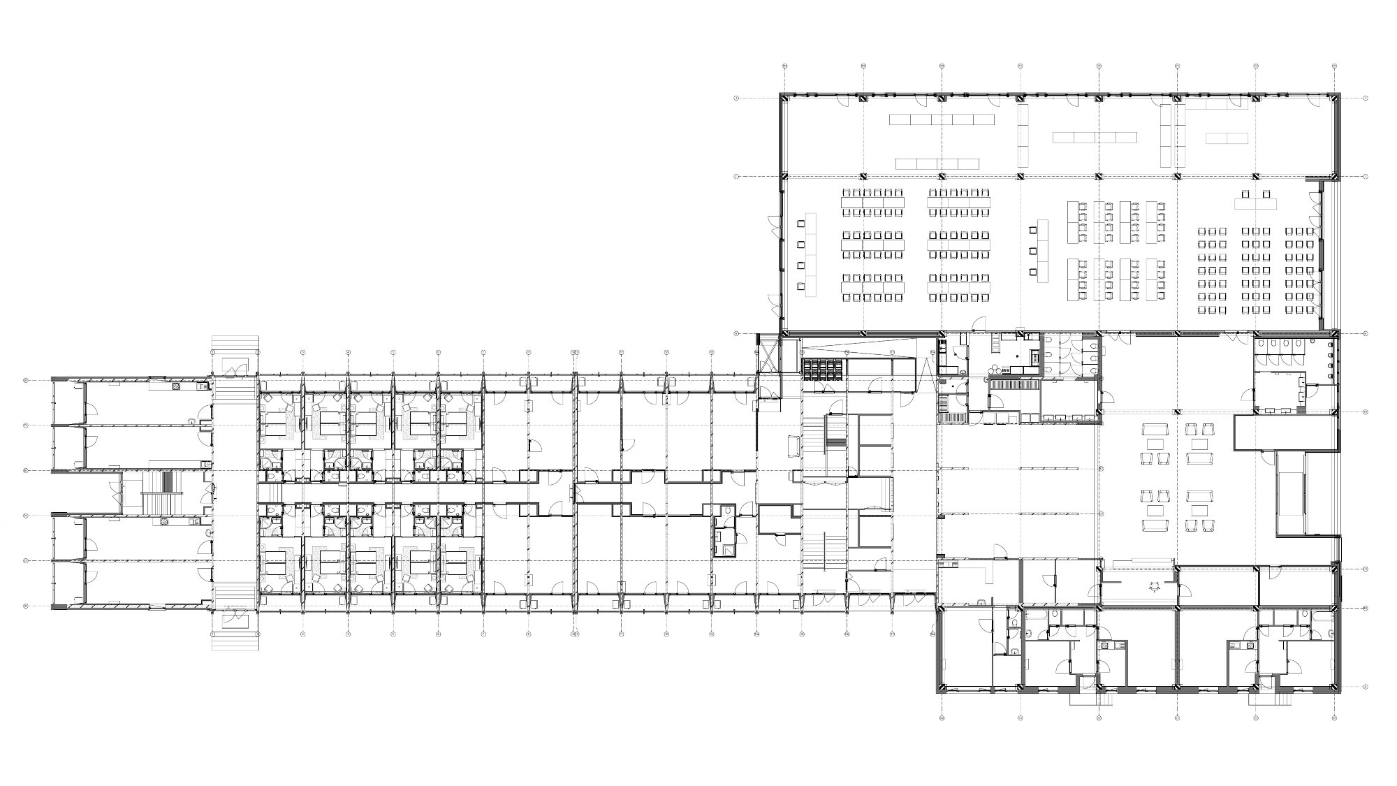
A felújítás során a korszerű szállodaüzemeltetési elvekhez igazodva kellett újragondolni a szobák berendezését, valamint új használati igényeknek megfelelően alakítottuk ki a közösségi terek funkcionális elosztását.
A tulajdonosok célja volt, hogy a korábban kizárólag nyári szezonban működő szálloda éves kihasználtságát növeljék: a főszezon előtti és utáni időszakban a létesítmény konferenciaturizmus és vállalati rendezvények helyszíneként is működhessen.
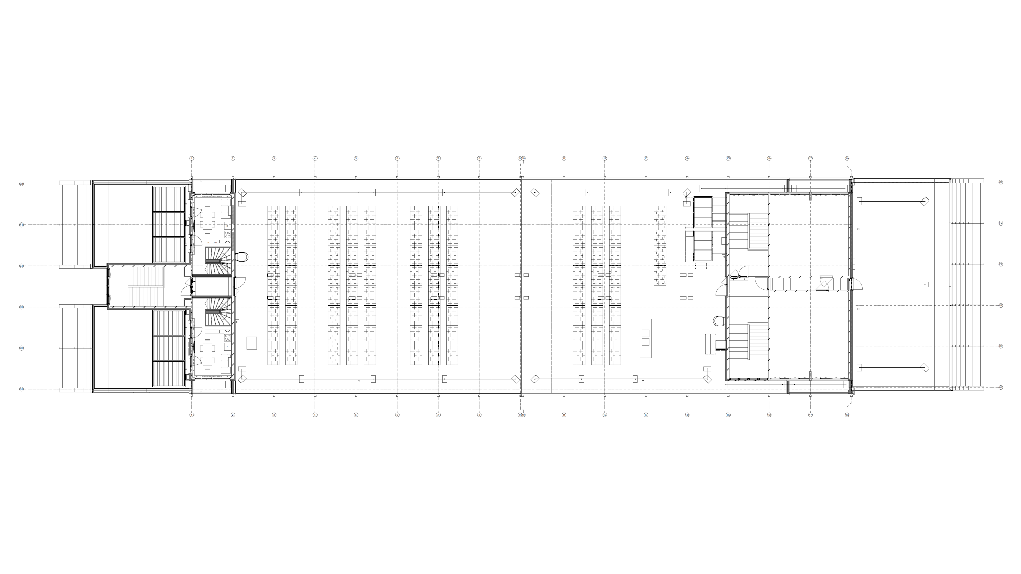
A tervezési feladat az épület energetikai korszerűsítésére is kiterjedt. A zárófödémre napelemes rendszert terveztünk, míg a helyiségek temperálását hőszivattyús megoldással biztosítottuk.
A felújítás során a korszerű szállodaüzemeltetési elvekhez igazodva kellett újragondolni a szobák berendezését, valamint új használati igényeknek megfelelően alakítottuk ki a közösségi terek funkcionális elosztását.
A tulajdonosok célja volt, hogy a korábban kizárólag nyári szezonban működő szálloda éves kihasználtságát növeljék: a főszezon előtti és utáni időszakban a létesítmény konferenciaturizmus és vállalati rendezvények helyszíneként is működhessen.
A tervezési feladat az épület energetikai korszerűsítésére is kiterjedt. A zárófödémre napelemes rendszert terveztünk, míg a helyiségek temperálását hőszivattyús megoldással biztosítottuk.
TGA Tervek Kft.
2100 Gödöllő, Kossuth Lajos utca 25.
1117 Budapest, Fehérvári út 44.
2100 Gödöllő, Kossuth Lajos utca 25.
1117 Budapest, Fehérvári út 44.
+36 20 807 0556
tooth.g@tgatervek.com
tooth.g@tgatervek.com
