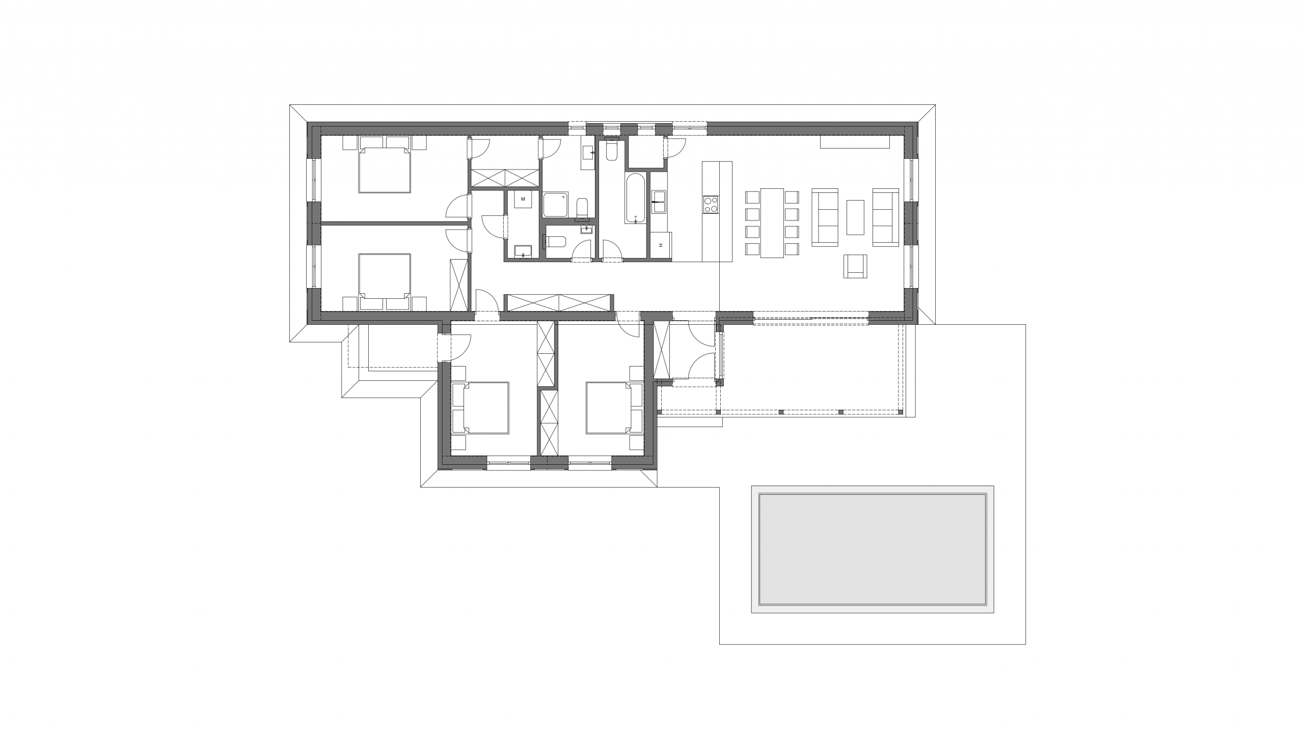
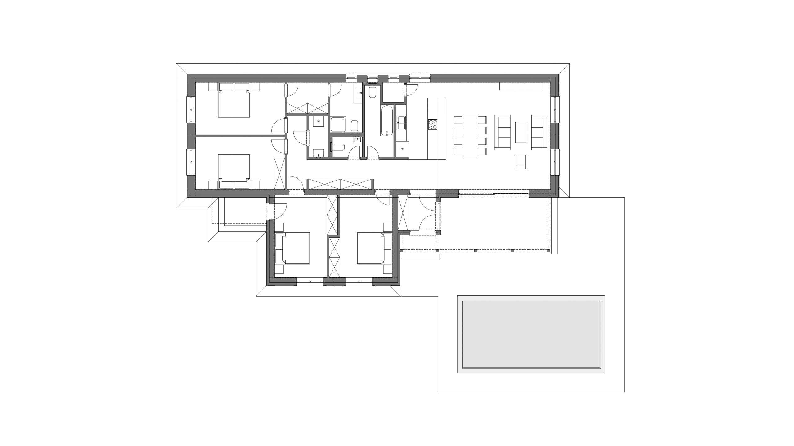
Ságvár családiház
| tervezés ideje: | 2024 |
| helyszín: | Ságvár, Fő utca |
| tervezési feladat: | Családiház |
| hasznos alapterület: | 214 m2 |
| felelős tervező: | Tóth Gábor |
| munkatársak: | Ádám Benedek |
Több változatban készítettünk tervvázlatokat egy földszintes elrendezésű családi házra. Megrendelőnk kérésére különböző építészeti stílusokat próbáltunk ki ugyanarra az alaprajzi beosztásra, bemutatva, hogyan formálja az épület karakterét a homlokzatképzés és az anyaghasználat.
TGA Tervek Kft.
2100 Gödöllő, Kossuth Lajos utca 25.
1117 Budapest, Fehérvári út 44.
2100 Gödöllő, Kossuth Lajos utca 25.
1117 Budapest, Fehérvári út 44.
+36 20 807 0556
tooth.g@tgatervek.com
tooth.g@tgatervek.com
