TT üzemcsarnok
| tervezés ideje: | 2021-2023 |
| helyszín: | Szekszárd, Ipari park, Avar út |
| tervezési feladat: | Gyümölcsfeldolgozó üzem és telephely |
| hasznos alapterület: | 5340 m2 |
| felelős tervező: | Tóth Gábor |
| munkatársak: | Béres Károly, Bicsak Krisztián |
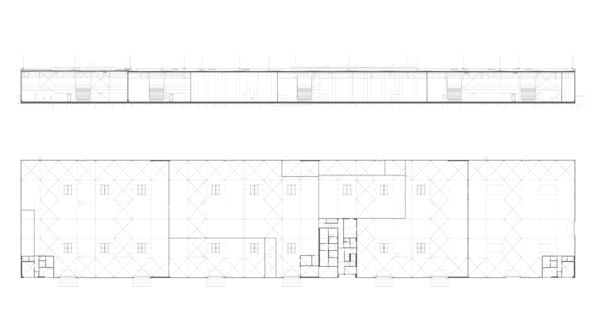
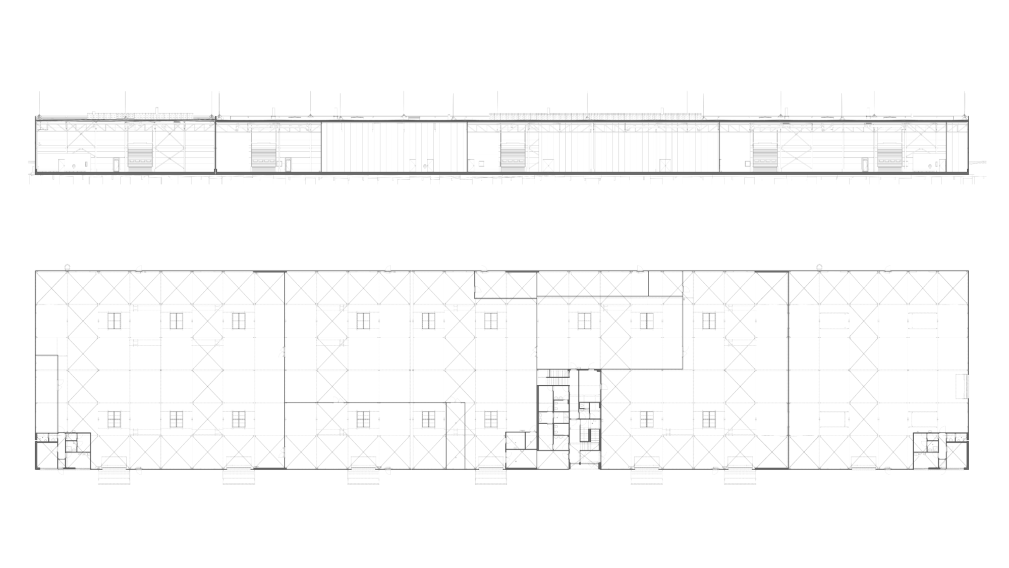
A szekszárdi Metallo-Pont Áruház telephelyén, a meglévő épület mögötti beépítetlen területre terveztünk egy kisebb, acélszerkezetű műhelycsarnokot. Az új csarnok kialakítása igazodik a meglévő épület tömegéhez és a telekadottságokhoz, kiegészítve a telephely műszaki-kiszolgáló funkcióit.
Az üzem alacsonyabb belmagasságú részébe kerültek a gyártástechnológiai funkciók, a magasabb épületrészt raktározási célra terveztük.
Az üzem alacsonyabb belmagasságú részébe kerültek a gyártástechnológiai funkciók, a magasabb épületrészt raktározási célra terveztük.
TGA Tervek Kft.
2100 Gödöllő, Kossuth Lajos utca 25.
1117 Budapest, Fehérvári út 44.
2100 Gödöllő, Kossuth Lajos utca 25.
1117 Budapest, Fehérvári út 44.
+36 20 807 0556
tooth.g@tgatervek.com
tooth.g@tgatervek.com
