Tectum
| tervezés ideje: | 2024 |
| helyszín: | (adaptálható) |
| tervezési feladat: | Tectum könnyűszerkezets házak |
| hasznos alapterület: | 96-115 m2 |
| felelős tervező: | Tóth Gábor |
| munkatársak: | Ádám Benedek, Béres Károly |
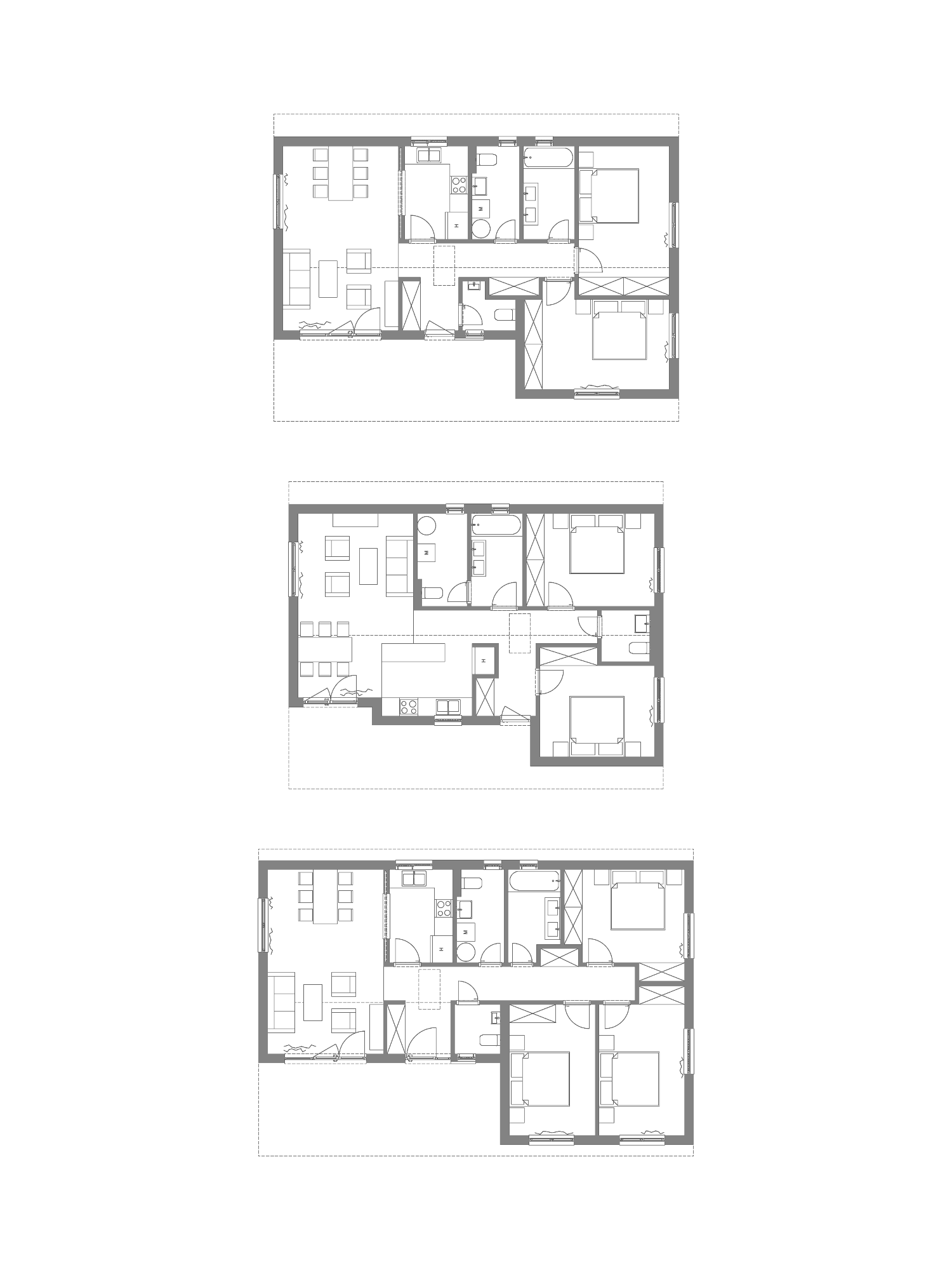
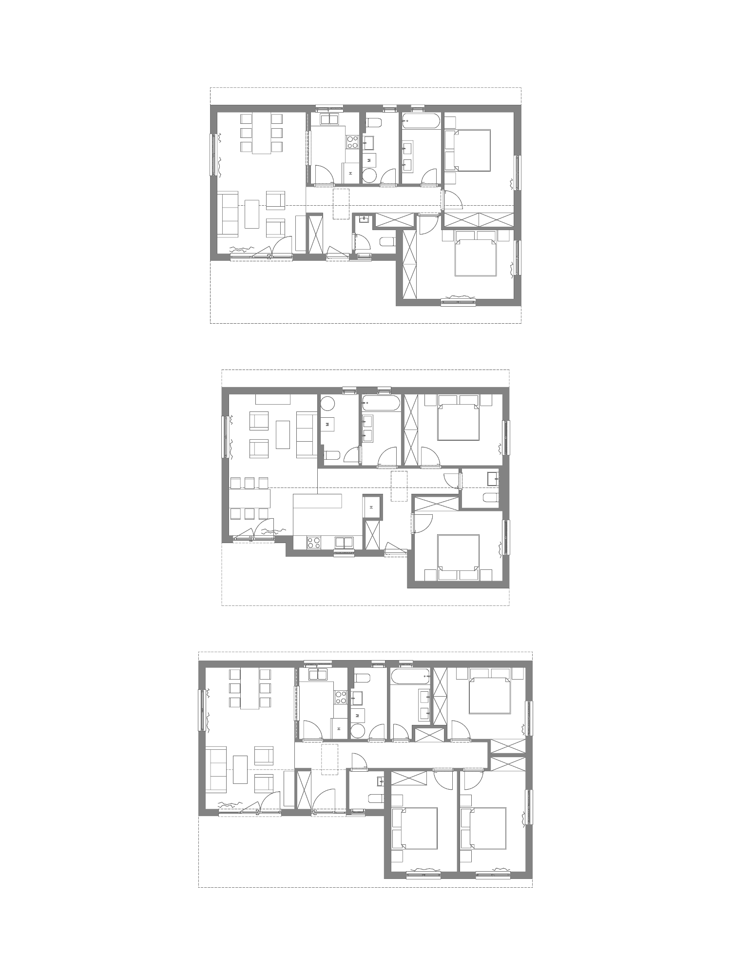
A Tectum Novum könnyűszerkezetes készházgyártó vállalat felkérésére készítettünk tanulmányterveket típusház-változatokról. A tervezés célja olyan moduláris, jól variálható háztípusok kidolgozása volt, amelyek hatékonyan illeszkednek a megbízó gyártási technológiájához, és jól skálázható termékpalettával szolgálják ki az eltérő megrendelői igényeket.
TGA Tervek Kft.
2100 Gödöllő, Kossuth Lajos utca 25.
1117 Budapest, Fehérvári út 44.
2100 Gödöllő, Kossuth Lajos utca 25.
1117 Budapest, Fehérvári út 44.
+36 20 807 0556
tooth.g@tgatervek.com
tooth.g@tgatervek.com
