Városkapu Lakópark
| tervezés ideje: | 2018 |
| helyszín: | Szekszárd, Csatári utca |
| tervezési feladat: | 18 lakásos pontházak beépítési programterve |
| hasznos alapterület: | 1590 m2 / épület |
| felelős tervező: | Tóth Gábor |
| munkatársak: | Béres Károly, Enyedi Gellért |
Feladatunk Szekszárd déli részén, meglévő lakóövezetbe ágyazott, eddig beépítetlen terület fejlesztési programtervének elkészítése volt.
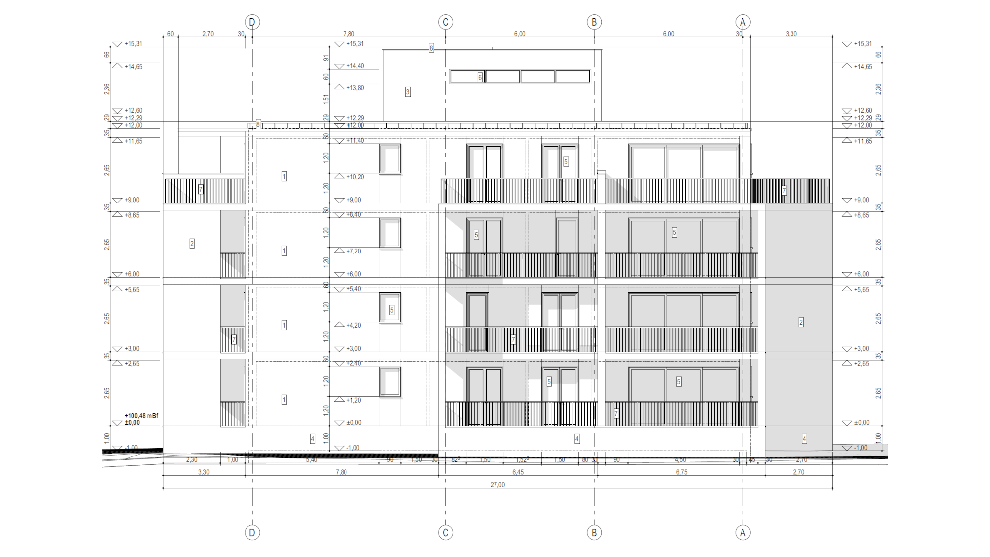
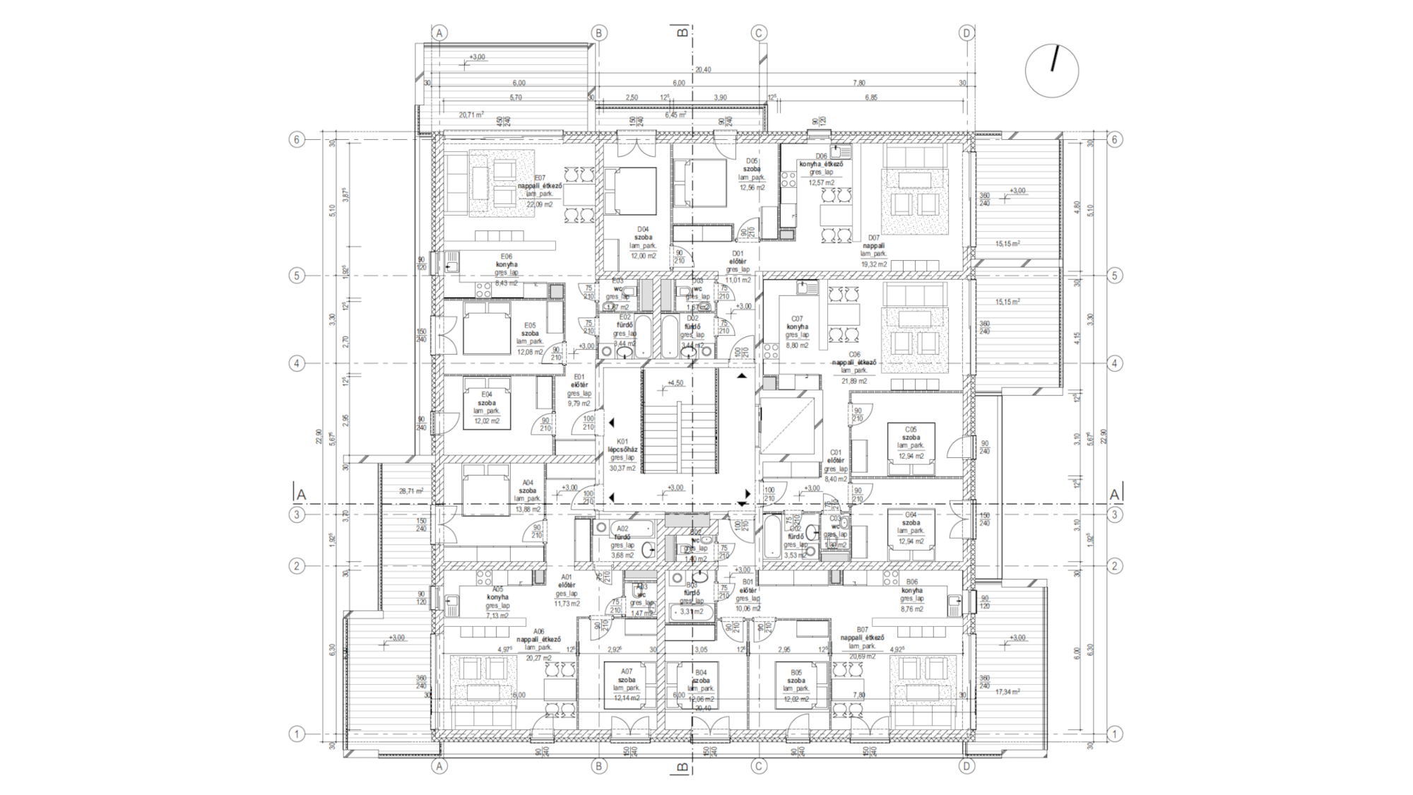
A területen olyan fogatolt rendszerű pontházakat terveztünk, amelyek átmenetet képeznek az északi irányban található szalag- és sorházas beépítésű lakóépületek, és a déli irányban kapcsolódó családi házas övezetek között. Az intenzív beépítés a fejlesztés alapvető elvárása volt, emellett kiemelt szerepet kapott a kivitelezés jó ütemezhetősége.
Az épületek fogatolt szerkesztési elve lehetővé tette, hogy a sarokhelyzetű nagyobb lakások két homlokzati irányba legyenek tájolhatók. A felvonót nem a központi, belső háromkarú lépcsőházi orsótérbe helyeztük, így a felső megvilágítás révén a közös használatú belső közlekedőtér világos és átlátható maradt.
A területen olyan fogatolt rendszerű pontházakat terveztünk, amelyek átmenetet képeznek az északi irányban található szalag- és sorházas beépítésű lakóépületek, és a déli irányban kapcsolódó családi házas övezetek között. Az intenzív beépítés a fejlesztés alapvető elvárása volt, emellett kiemelt szerepet kapott a kivitelezés jó ütemezhetősége.
Az épületek fogatolt szerkesztési elve lehetővé tette, hogy a sarokhelyzetű nagyobb lakások két homlokzati irányba legyenek tájolhatók. A felvonót nem a központi, belső háromkarú lépcsőházi orsótérbe helyeztük, így a felső megvilágítás révén a közös használatú belső közlekedőtér világos és átlátható maradt.
TGA Tervek Kft.
2100 Gödöllő, Kossuth Lajos utca 25.
1117 Budapest, Fehérvári út 44.
2100 Gödöllő, Kossuth Lajos utca 25.
1117 Budapest, Fehérvári út 44.
+36 20 807 0556
tooth.g@tgatervek.com
tooth.g@tgatervek.com
