Ipari épületek
Gyártó- és üzemcsarnokok, raktárak és telephely-fejlesztések tervezésénél a fókuszt a technológiai igények pontos kiszolgálására, az üzemeltetési szempontokhoz igazított optimális telepítés meghatározására, valamint — ahol releváns — a későbbi fejlesztési ütemek biztonságos megvalósíthatóságára helyezzük. Az ipari fejlesztések hatékony megvalósítását biztosítja a jó telepítési koncepció, a logikusan meghatározott telephelyi közlekedés és az egyértelműen dokumentált műszaki tartalom.
Tipikus megbízások
- Új építésű csarnokok tervezése, meglévő ipari épület-, telephelybővítés tervezése
- Pályázati forrást felhasználó beruházások előkészítése, pályázati tervdokumentáció és költségvetés összeállítása
- Iroda–szociális–üzemi blokkok kialakítása meglévő épületekben
- Telephelyi közlekedés, rakodási zónák, telken belüli közmű- és infrastruktúra fejlesztések tervezése
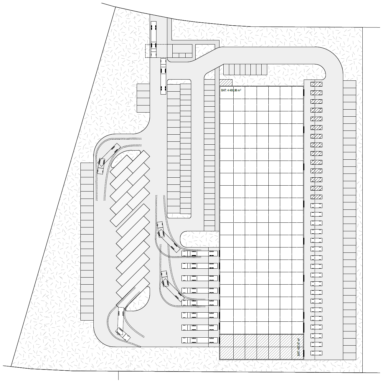
Az ipari beruházások előkészítését minden esetben egy olyan telepítési és működési koncepcióterv elkészítésével kezdjük, amely a tervezési programot gazdaságosan megvalósítható, jól üzemeltethető rendszerbe rendezi. A csarnokok elhelyezésénél figyelembe vesszük a domborzati adottságokat és az épület kiszolgálásához szükséges telephelyi közlekedési rendszer tulajdonságait. A belső úthálózatot és a rakodási pontokat a járműforgalom igényeihez igazítva tervezzük meg, a szükséges kanyarodási ívek, manőverezési területek és funkcionális zónák (rakodás, tárolás, tűzoltási felvonulás stb.) kijelölésével.
A csarnokok jellemző paramétereit — szerkezeti rendszer, raszter, tető- és homlokzati rendszer — a megrendelői igények alapján, a beruházási és üzemeltetési költségek figyelembevételével, valamint a tűzvédelmi és technológiai követelményekhez igazodva határozzuk meg. A döntéstámogatás érdekében alternatív szerkezeti és kialakítási változatokat is vizsgálunk, így a kivitelezési tervfázis megkezdéséig rugalmasan kezelhetők a piaci viszonyokhoz igazodó műszaki és költségszempontok (pl. előregyártott vasbetonváz vagy acélszerkezetű rendszer).
Pályázati finanszírozású beruházások esetén a projekt műszaki tartalmát az adott pályázati konstrukció elszámolási logikájához és a forrás hatékony felhasználási feltételeihez igazítjuk. Ennek megfelelően állítjuk össze a pályázati tervdokumentációt és a tételes beruházási költségvetést; igény esetén a költségvetést az adott időszakban érvényes ÉNGY normagyűjtemény szerinti árazott formában is elkészítjük. A munkanemekhez kapcsolódó kimutatások előállításával támogatjuk a pályázati benyújtáshoz szükséges kivitelezői árajánlatok beszerzését is.
Az előkészítő szakaszt a telepítési helyszínrajzot, műszaki terveket és a külső megjelenést bemutató látványterveket tartalmazó, a településképi eljárások lefolytatására alkalmas vázlattervi dokumentáció átadásával zárjuk le. Az engedélyezési tervdokumentációt az érintett hatósági és szakmai egyeztetésekkel összhangban készítjük el, az egyes szakági munkarészeket a megrendelői célokhoz és az üzemeltetési elvárásokhoz illeszkedve koordináljuk. Egyedi meghatalmazás esetén az engedélyezési eljárás adminisztratív folyamataiban is közreműködünk (kérelem feltöltése, hatósági kapcsolattartás az ÉTDR felületen).
Az ajánlati tervek és a kiviteli tervek összeállítását BIM szemlélettel végezzük: az épületszerkezeti rendszer, valamint a releváns gépészeti és villamos rendszerek fő elemei a digitális modellben is megjelennek. A 3D szerkesztési és modellezési elveket a földmunka, tereprendezés, telken belüli közmű- és környezetrendezési tervek készítésénél is érvényesítjük, és a tervfázis kidolgozottságának megfelelő kimutatásokkal támogatjuk a hatékony költségkontrollt. A tervezési folyamat során minden ütemben IFC formátumban publikált 3D modellt is szolgáltatunk. Számunkra ez nemcsak adatközlési forma, hanem jóváhagyási dokumentum is: a modell egyértelműen rögzíti a műszaki tartalmat, támogatja a tervezés alatti ellenőrzést, és lehetőséget ad arra, hogy a beruházás résztvevői még a véglegesítések előtt részleteiben megismerjék az épület kialakítását. A beérkező észrevételeket strukturáltan feldolgozzuk, így a kiviteli dokumentáció véglegesítése kontrolláltan, félreértések nélkül történhet meg.
A megvalósítási szakaszban tervezői művezetés / tervezői támogatás keretében segítjük a pontos, magas műszaki színvonalú kivitelezést. Megrendelői igény szerint a megvalósult állapot dokumentálásával, a készültségi foknak megfelelően folyamatosan karban tartjuk a BIM/IFC modellt, így a projekt lezárásakor egy naprakész, visszakereshető, a használatbavételi eljárásban is felhasználható műszaki dokumentáció áll ügyfeleink rendelkezésére.
2100 Gödöllő, Kossuth Lajos utca 25.
1117 Budapest, Fehérvári út 44.
tooth.g@tgatervek.com
